| |
Abrieb-
bestaendig |
Hitze-
bestaendig |
Oelbestaen-
dig |
Selbstloe-
schend |
|
|
CL |
EC |
CX |
TX |
OM |
OH |
AG |
BS |
|
Otěr |
XXX |
XXXX |
XX |
XXX |
X |
X |
X |
XX |
|
Řez - trhlina |
XXX. |
XXXX |
XX |
XX |
XX |
XX |
XXX |
XX |
|
Oheň |
U.A. |
U.A. |
U.A. |
U.A. |
U.A |
U.A |
XXXX |
XXXX |
| Živočišný +
rostliný olej |
U.A. |
U.A. |
U.A. |
U.A. |
XXXX |
XXXX |
XXXX |
U.A. |
|
Minerální olej |
U.A |
U.A |
U.A. |
U.A |
XX |
XXXX |
XXX |
U.A. |
|
HITZE UND KAELTEBESTAENDNG °C |
|
Stálá teplota |
70 |
70 |
130 |
180 |
70 |
80 |
80 |
70 |
|
Špičková teplota |
90 |
90 |
150 |
200 |
90 |
100 |
100 |
90 |
|
NIEDRIG TEMPERATUR °C |
|
|
-40 |
-40 |
-30 |
-30 |
-40 |
-25 |
-25 |
-30 |
|
Belt style
KN/m |
Cover thickness
mm |
Available widths
mm |
Belt weight
Kg/m2 |
Min. drive pulley diameter
mm |
|
500/3 |
5+2 |
500 - 800 |
12,9 |
400 |
|
500/3 |
8+3 |
800 - 1600 |
17,6 |
400 |
|
800/4 |
8+3 |
1000-2000 |
20,0 |
630 |
 |
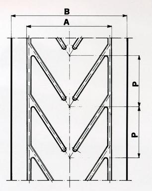
B
mm |
A
mm |
P
mm |
400/3 3+2
Tot. Thikness
8 mm |
|
600 |
385 |
250 |
X |
|
650 |
385 |
250 |
X |
|
800 |
605 |
365 |
X |
|
1000 |
605 |
365 |
X |
 |
B
mm |
A
mm |
P
mm |
400/3 3+2
Total thickness
8 mm |
500/3 4+2
Total thickness
9 mm |
|
600 |
550 |
250 |
X |
|
|
650 |
550 |
250 |
X |
|
|
800 |
550 |
250 |
X |
|
|
1000 |
700 |
300 |
|
X |
|
1200 |
700 |
300 |
|
X |
 |
B
mm |
A
mm |
P
mm |
400/3 3+2 Total thickness
8 mm |
500/3 4+2 Total thickness
9 mm |
630/4 4+2 Total thickness
10 mm |
|
800 |
385 |
250 |
X |
|
|
|
900 |
725 |
420 |
|
X |
|
|
1000 |
725 |
420 |
|
X |
X |
|
SLIDEM |
|
|
|
 |
Standard production
|
Belt style
KN/m |
Covers thickness
mm |
Total thickness
mm |
Standard available widths mm |
|
400/3 |
2+0 |
7,5 |
400 - 1400 |
Minimum recommended pulley diameters
|
Belt style
KN/m
|
60% to 100% of RMBT |
30% to 60% of RMBT |
Up to 30% of RMBT |
|
Drive |
Tail |
Snub |
Drive |
Tail |
Snub |
Drive |
Tail |
Snub |
|
400/3
|
315 |
250 |
200 |
250 |
200 |
160 |
200 |
160 |
125 |
|
|
Diam mm |
Belt width mm |
Min transition distance
m |
Min curve radius
m |
Capacity (1m/sec)
m3/h |
Max speed m/sec |
Max lump size
mm |
|
100 |
450 |
2,5 |
30 |
21,2 |
2,2 |
30 |
|
150 |
600 |
4,0 |
45 |
46,9 |
2,2 |
45 |
|
200 |
800 |
5,0 |
60 |
84,7 |
2,5 |
60 |
|
250 |
1000 |
6,5 |
75 |
132,4 |
2,5 |
75 |
|
300 |
1200 |
7,5 |
90 |
190,7 |
3,0 |
95 |
|
350 |
1400 |
9,0 |
105 |
256,2 |
3,5 |
110 |
|
400 |
1600 |
10,0 |
120 |
339,1 |
4,0 |
125 |
|
500 |
1900 |
12,5 |
150 |
530,0 |
4,5 |
150 |
|
Belt range N/mm |
Ratio of working tension against recommended max
belt tension |
|
Between 60 % and 100 %
Safety factor between 8 and 13 |
Between 30 % and 60 %
Safety factor between 13 and 27 |
Up to 30 %
Safety factor over 27 |
|
TYPE OF PULLEY |
|
A |
B |
C |
A |
B |
C |
A |
B |
C |
|
500 |
400 |
315 |
250 |
315 |
250 |
200 |
250 |
250 |
200 |
|
630 |
400 |
315 |
250 |
315 |
250 |
200 |
250 |
250 |
200 |
|
800 |
500 |
400 |
315 |
400 |
315 |
250 |
315 |
315 |
250 |
|
1000 |
500 |
400 |
315 |
400 |
315 |
250 |
315 |
315 |
250 |
|
1250 |
630 |
500 |
400 |
500 |
400 |
315 |
400 |
400 |
315 |
|
1400 |
630 |
500 |
400 |
500 |
400 |
315 |
400 |
400 |
315 |
|
1600 |
630 |
500 |
400 |
500 |
400 |
315 |
400 |
400 |
315 |
|
1800 |
630 |
500 |
400 |
500 |
400 |
315 |
400 |
400 |
315 |
|
2000 |
630 |
500 |
400 |
500 |
400 |
315 |
400 |
400 |
315 |
|
Belt style KN/m |
500 |
630 |
800 |
1000 |
1250 |
1400 |
1600 |
1800 |
2000 |
|
HEAT RESISTANT COVER SX |
|
Cover thick. mm |
3+3 |
3+3 |
3+3 |
3+3 |
3+3 |
3+3 |
3+3 |
3+3 |
3+3 |
|
Belt Thick. mm |
10,6 |
10,6 |
11,4 |
11,4 |
12,3 |
12,3 |
12,3 |
12,3 |
12,3 |
|
Belt weigth kg/m2 |
15,4 |
15,8 |
17,6 |
18,2 |
20,1 |
20,7 |
21,4 |
21,9 |
22,3 |
|
HEAT RESISTANT COVER BX |
|
Cover thick. mm |
4+4 |
4+4 |
4+4 |
4+4 |
4+4 |
4+4 |
4+4 |
4+4 |
4+4 |
|
Belt Thick. mm |
12,6 |
12,6 |
13,4 |
13,4 |
14,3 |
14,3 |
14,3 |
14,3 |
14,3 |
|
Belt weigth kg/m2 |
16,8 |
17,2 |
19,0 |
19,6 |
21,5 |
22,1 |
22,8 |
23,3 |
23,7 |
|
Belt style
K/m |
400/3 |
500/4 |
630/4 |
800/5 |
1000/5 |
1250/5 |
1600/5 |
| STANDARD COVER LX |
| Cover thick. mm |
2+2 |
2+2 |
2+2 |
2+2 |
2+2 |
2+2 |
2+2 |
| Belt Thick. mm |
6,8 |
7,8 |
8,6 |
9,7 |
10,7 |
12,1 |
13,4 |
| Belt weigth kg/m2 |
8,1 |
9,2 |
10,2 |
11,5 |
12,8 |
14,6 |
16,4 |
| HEAT RESISTANT COVER AX |
| Cover thick. mm |
2+2 |
2+2 |
2+2 |
2+2 |
2+2 |
2+2 |
2+2 |
| Belt Thick. mm |
6,8 |
7,8 |
8,6 |
9,7 |
10,7 |
12,1 |
13,4 |
| Belt weigth kg/m2 |
8,2 |
9,3 |
10,3 |
11,6 |
12,9 |
14,7 |
16,5 |
| SELF EXTINGUISH AND OIL RESISTANT AG |
| Cover thick. mm |
2+2 |
2+2 |
2+2 |
2+2 |
2+2 |
2+2 |
2+2 |
| Belt Thick. mm |
6,8 |
7,8 |
8,6 |
9,7 |
10,7 |
12,1 |
13,4 |
| Belt weigth kg/m2 |
8,6 |
9,7 |
10,7 |
12,0 |
13,3 |
15,1 |
16,9 |
|
|